× Send

The Vesta™: Greenhouse Home Design

The Ceres kit house is leading the way in energy-efficient home design. The goal of the Vesta™ design is to provide you with a self heating, food producing home that is affordable to purchase, fast to construct, low maintenance and designed with beauty in mind.

The Vesta- Greenhouse Home Design

View Vesta™ Kit Details

Watch the Vesta™ construction from the ground up!

Why the Vesta™ Kit House?

Passive House Inspired

This energy-efficient greenhouse home design has strategic overhangs that shade windows in summer and allow for sunlight and warmth to enter in winter. 

Pre Fab Construction

No framing to cut, minimal material waster, and ready to build. Easy to order and fast to construct.

A Greenhouse for Food & Heat

This energy-efficient greenhouse home design has strategic overhangs that shade windows in summer and allow for sunlight and warmth to enter in winter. 

Highly Insulated

Insulation wraps around the exterior of framing with 4" Insulated Metal Panels for walls (R-32) and 6" panels for the roof (R-48) 

Is the Vesta™ a Modular Home? Kit Home?

The Vesta™ is a kit home. Kit homes are constructed from raw materials and pre-cut parts that are shipped to the site and assembled from scratch. They arrive only 0–10% complete, so construction time is similar to a traditional build. They offer a lot of design freedom and lower material costs. 

Modular homes arrive 90–95% finished in large factory-built sections — wiring, plumbing, and finishes already done — and are craned onto a permanent foundation. Because factory work and site prep happen at the same time, build time is often cut in half. They’re less freely customizable than kit homes but are far closer to move-in ready.

Kit Home vs Modular Home Comparison Chart

Category Kit home
Build it yourself
Modular home
Factory-built sections
How it's built
Pre-cut parts shipped to site — all construction happens on location, like a large flat-pack kit. Large modules built in a factory with wiring, plumbing & finishes installed, then craned onto a foundation.
Completion at delivery
0–10% complete
90–95% complete
Build time
Longer — comparable to traditional site-built construction. Much faster — factory work and site prep happen simultaneously, often cutting total time in half.
Cost profile
Lower material cost, but on-site labor adds up significantly. Higher upfront factory cost, offset by lower on-site labor due to faster assembly.
Customization
Highly flexible — A-frames, log cabins, Scandinavian styles and more. Customizable within the manufacturer's floor plans and module configurations.
Skills needed
Skilled contractors or an experienced DIY self-builder. Manufacturer's crew or specialist contractor — not a DIY project.
Move-in readiness
Requires full on-site build-out before occupancy. Near move-in ready after modules are joined and connections finished.

Both types sit on permanent foundations and are treated as real property.

The core tradeoff is control vs. convenience — a kit home gives you more flexibility and potentially lower upfront costs, while a modular home gets you into the house faster with less hands-on building required.

A Flexible Home Layout for Your House in a Greenhouse

We leave the layout and interior design to you so that you can customize any Vesta™ model to your own style and needs.

kitchen greenhouse home design- vesta
inside the vesta kit house
A homestead greenhouse- vesta
greenhouse home design-vesta

Download The Vesta™ Brochure

vesta_brochure_display

By clicking the button above, you agree to receive emails from Ceresgs.com. Unsubscribe at any time.

Vesta - home controller

Integrated & Automated Home Controller

The Ceres designed Vesta™ controller makes the highly efficient structure a truly smart home.  The controller works as a standard thermostat to control your HVAC equipment, while also controlling greenhouse exhaust fans, heat, supplemental lighting and shading if desired. The controller can open and close strategic windows to move heat from the greenhouse into the main house on cooler days, and can open upper clerestory windows for cooling when needed on warmer days.

Ceres Greenhouse Options

The Vesta™ FAQs

Yes. A forklift or telescopic handler is required for raising some of the large columns and placing the rafter beams. All of the main framing is bolted together (bolts supplied) and the lighter gauge framing is connected with bolts/tek screws. That being said, having construction experience or hiring a general contractor/framer to build the house is recommended.

Yes, expansion is possible. Because we are not specifically designing for expansion, design fees may apply.

Yes. The tightness of the building and high insulation value works great in both hot and cold climates. 

The Vesta can be built by the anyone with some construction experience or a local general contractor. Ceres is always there to provide guidance and support during the build process. 

Ceres offers several recommended floor plans at no cost. Owners can design their own floor plans or work with an architect/design-build firm to design their own layouts as well.

The client or contractor. This is not supplied by Ceres. We understand where we offer value and where the customer can find the same materials elsewhere and save money on extra shipping costs. 

No. The greenhouse is separated from the house with exterior wall panels as well as exterior grade windows, so you can view them as two separate spaces. The greenhouse also comes with a ventilation system, which includes exhaust fans and intake louvers. A retractable shade curtain can be installed for additional cooling or removable shade paint can be used during the hottest months. 

Depending on your power needs, the Vesta™ has space for a 4 kilowatt solar system (assuming 11, 375 watt panels) on the south facing solid portion of the attached greenhouse. With efficient appliances and mechanical systems this could be enough to make the house net zero or net positive. Ceres can offer a solar layout design and recommendation for a small fee, to be installed by a local solar contractor.

We have designed space for 11 3.5×5.5ft solar panels on the south facing solid portion of the attached greenhouse roof. If this is grid tied, it may make sense to add more solar panels on the roof of the house as well.  While the orientation of the roof is not ideal, it is advantageous in certain locations to increase solar capacity.

Ceres can also incorporate solar PV glass into the greenhouse structure of the Vesta™ Naturehouse.

Yes. The entire roof of the house is steel and slopes to the north with approximately 1,000sqft of surface area. A rainwater collection system can be connected to the north side of the roof. Please note that rainwater collection can be illegal in certain locations, so we advise you to call your local authorities for regulations where you live.

Currently we have not sought out any certifications, but we may in the future. If that is something you would like to explore for your own home, we would be happy to support you in the process. 

At this point we are anticipating 2-3 months for delivery. While some of this time is for design and permitting, clients can be working on foundation, etc, once plans are complete.

If radon is detected a mitigation system can be installed under the slab before construction. This is dealt with by the homeowner or contractor, and does not fall under the responsibility of Ceres. 

In the greenhouse, venting is the first step and an optional dehumidifier will help with dehumidification in the winter months. The greenhouse heater will also help with greenhouse humidification loads.

Yes. The Vesta™ and Vesta™ Nature house can be customized to include an additional basement under the house, however the greenhouse would not. Clients design their own foundation so this is something to sort our with your local general contractor.

Yes. Each Vesta™ option is expandable in the east/west direction.

The Naturehouse is constructed with heavy gauge steel I-beams as the main frame of the house and greenhouse. The house is clad in insulated metal panels, the walls are 4” thick with an R-32 insulation value, the roof is 6” thick with an R-value of 48. The windows are triple pane fiberglass.

The greenhouse glass is double pane, and the aluminum connection system is thermally broken throughout to minimize the transfer of heat and cold from outside the greenhouse to inside the greenhouse.

Tell Us About Your Project

Specifications for the Vesta™ Model:

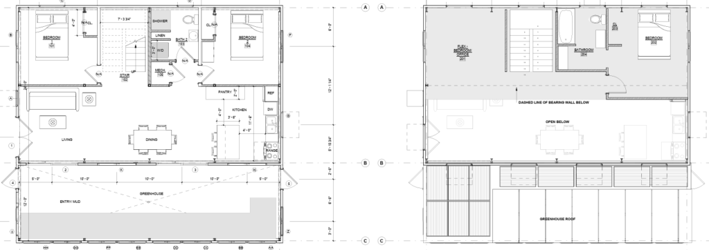
  • 24 ft x 40 ft house layout (includes 1 pre-designed floor plan)
  • 12 ft x 40 ft attached greenhouse
  • Galvanized steel with vertical columns and roof rafters spaced every 10 feet
  • Exterior doors, vinyl windows
  • Stamped structural drawings, construction drawings
  • Pre-engineered for 65psf snow & 110 mph wind load

 

ATTACHED GREENHOUSE

South wall glazing consists of non coated insulated double pane windows, greenhouse roof glazing is 16mm polycarbonate (insulation value R-2.5). Other roof glazing options are available.  Exhaust & circulation fan kit for greenhouse also included.

The Vesta™ Kit House

*Please contact us for price information

greenhouse attached to home- vesta
vesta kit house floor plan

Lorem ipsum dolor sit amet, consectetur adipiscing elit. Ut elit tellus, luctus nec ullamcorper mattis, pulvinar dapibus leo.

Specifications for the Vesta™+ Model:

  • 24 ft x 40 ft house layout (includes 1 pre-designed floor plan)
  • 14 ft x 40 ft second story loft with framing
  • 12 ft x 40 ft attached greenhouse
  • Galvanized structural steel for greenhouse & house  with columns and roof rafters spaced every 10 feet
  • Exterior doors, vinyl windows
  • Stamped structural drawings, construction drawings
  • Pre-engineered for 65psf snow & 110 mph wind load

 

ATTACHED GREENHOUSE

South wall glazing consists of non coated insulated double pane windows, greenhouse roof glazing is 16mm polycarbonate (insulation value R-2.5). Other roof glazing options are available. Exhaust & circulation fan kit for greenhouse also included. 

Vesta Plus

*Please contact us for more information

vesta kit house-outside-construction-side angle
vesta kit house outside contruction
vesta+ sample floor plans

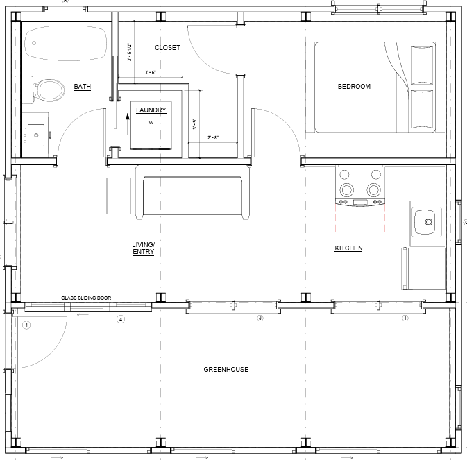
Specifications for the Vesta™ ADU Model:

  • 16 ft x 24 ft living area layout (includes 1 pre-designed floor plan)
  • 8 ft x 24 ft attached greenhouse
  • Galvanized structural steel for greenhouse & house
  • 1 exterior door, vinyl windows
  • Stamped structural drawings, construction drawings

 

ATTACHED GREENHOUSE

South wall glazing consists of non coated insulated double pane windows, greenhouse roof glazing is 16mm polycarbonate (insulation value R-2.5). Other roof glazing options are available. Exhaust & circulation fan kit for greenhouse also included.

The VestADU greenhouse image

*Please contact us for more information

The VestADU - interior
vesta ADU perspective
sample vesta adu floorplan

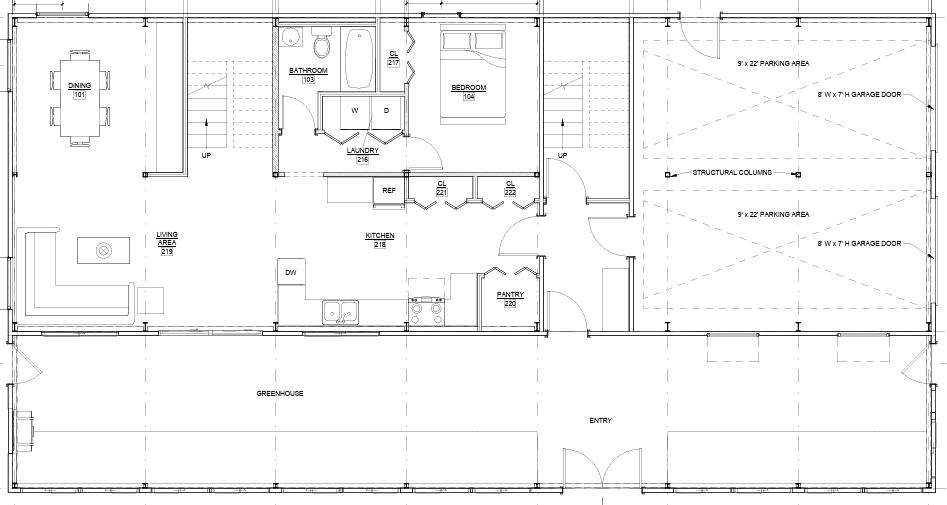
Specifications for the Vesta™ Homestead Model:

  • 24 ft x 40 ft house layout (includes 1 pre-designed floor plan)
  • 20 ft x 20 ft garage
  • 24 ft x 30 ft above garage apartment
  • Galvanized steel with vertical columns and roof rafters spaced every 10 feet
  • Stamped structural drawings, construction drawings
  • Pre-engineered for 65psf snow & 110 mph wind load

ATTACHED GREENHOUSE

South wall glazing consists of non coated insulated double pane windows, greenhouse roof glazing is 16mm polycarbonate (insulation value R-2.5). Other roof glazing options are available. Exhaust & circulation fan kit for greenhouse also included.

The Vesta garage - exterior

*Please contact us for more information

A homestead greenhouse- vesta
kitchen greenhouse home design- vesta
vesta homestead sample floorplans

Specifications for the Vesta™+ Naturehouse:

  • 24 ft x 40 ft house layout 
  • 14 ft x 30 ft second story loft with framing
  • 14 ft x 10 ft full second story
  • 2,880 sq ft attached glasshouse
  • Galvanized structural steel for greenhouse & house with columns and roof rafters spaced every 10 feet
  • Triple pane windows & exterior doors
  • Stamped structural drawings, construction drawings
  • Pre-engineered for 65psf snow & 110 mph wind load

 

ATTACHED GREENHOUSE

Double pane insulated glass with aluminum support system. Rack and pinion roof vent and low air intakes included for passive venting. Exhaust & circulation fan kit for greenhouse also included.

Vesta glasshouse - top view

*Please contact us for more information